
RATED #1 DECK BUILDING COMPANY IN KNOXVILLE AREA BY OVER 1,000 PEOPLE
From wood to composite: Elevated Deck replacement
— how we rebuilt a failing wood deck with modern materials and building methods
- Low-maintenance composite decking
- Improved stairway system
- Bronze fine aluminium railings










Part One: The deck Inspection
The once-beautiful wood deck Linda and her spouse enjoyed had become a safety hazard.
Its underside was damaged by moisture retention, which made the space look neglected and uninviting.
Their home walls were affected by the green algae as well, so they knew something had to change.
In July, the couple reached out to us with plans for a deck replacement.
The issues with the old deck included...

Compromised framing
Every joist and decking board underside was covered in heavy green algae, a sign of harsh moisture damage.

Damaging slope
The old deck integrated a slope, with a downspout extension placed right next to the lattice skirting. These were another sources of moisture damage.

Cracks and splitting
The surface boards had multiple cracks from weather damage and showed heavy flaking of the past stain or sealant applied.

Retaining wall removal
The stepped brick retaining wall supporting the slope had to be removed as well. It blocked the airflow and created an awkward layout.

Mold streaks
The decking surface was covered in active dark mold and mildew streaks, the result of long-term water damage.
Part Three: Ready For Construction
Every permit and inspection was handled by our team, so the building stage followed easily.
After removing the old deck, we leveled out the slope on the stairway side and the segmented brick wall for better airflow and moisture management.
Everything was measured and installed up-to-code, for a lasting outdoor space.
Once all the materials arrived on site, we quickly got to work.
| 7-8 August: | We removed the old deck and prepared the surface. |
| 11- 12 August: | The framing of the new deck started along with the new stairway. |
| 13-14 August: | We installed the new decking, railing, and steps, then did a final walkthrough with our client. |

Check Out The Deck Transformation!
From a decaying deck that made guests uncomfortable to an outdoor retreat everyone wants to hang out in.
Swipe to see the transformation

Swipe to see the transformation

Swipe to see the transformation

Swipe to see the transformation

Swipe to see the transformation

Swipe to see the transformation

Swipe to see the transformation

Swipe to see the transformation

Elevated Deck Replacement
This project included:
- 220 sq. ft. of composite decking
- Designs, plans, and permitting
- Demolition and clean-up
- Slope, brick wall, and concrete step removal
- New framing system and posts layout
- Deckorators Venture series decking
- Improved stairway structure
- Concrete stairway base leading to patio
- Bronze fine texture aluminium railing
- Bonus steel propane fire pit

Deckorators Composite - Venture Series Sandbar
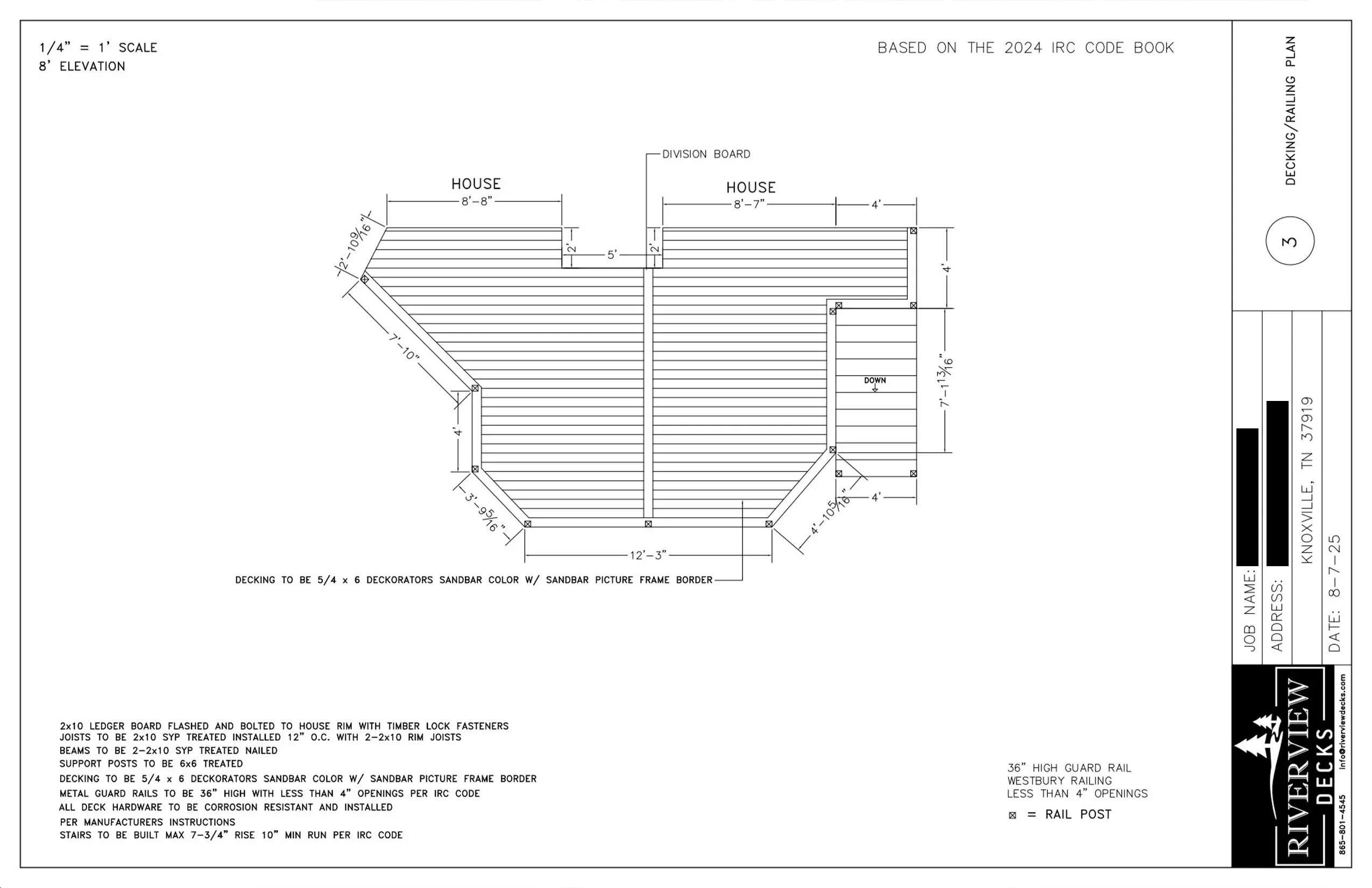
We installed 120 sq. ft. of composite decking, perfect for our clients to enjoy a low-maintenance deck. It’s durable, resistant to water or UV damage, and you can walk on barefoot because it stays cold and splinter-free.

Westbury Aluminum Railing
We installed all straight and stair aluminum railing up to the highest standards in the industry. There were 40 linear feet of straight railing and 4 linear feet of stairs railing, all in Westbury C-10 metal railing with lifetime warranty.

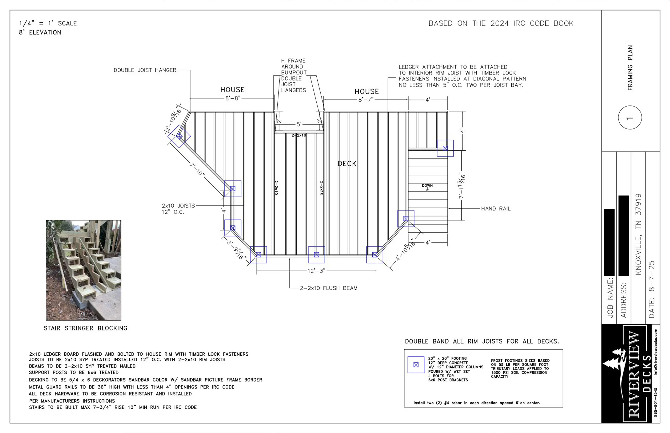
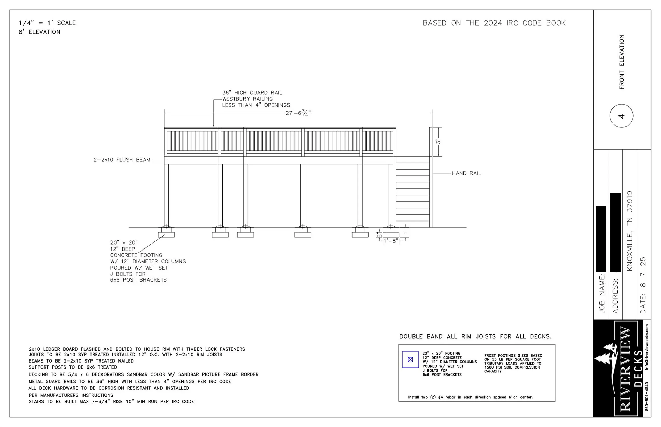
KDHT Lumber Framing
We had to use 192 sq. ft. of framing material. For both ledger board and framing, we used 2’x10′ lumber 12″ on-center. This is the most cost-efficient framing material, and our go-to for all deck building projects.
Deck Building Materials Used
How Much Did it Cost?
This elevated deck project was quoted at $41,958, with the owners having benefited from a “Back To School” 10% off promo with a free Aegean Fireplace included.
1,000+
decks built & repaired
500+
clients served
100+
5-star reviews
60+

Hey! I'm Nate, The Owner Of Riverview Decks!
We’re a licensed and insured deck building company, certified by Envision, Trex, TimberTech, Fiberon, and Deckorators. In over 21 years of experience, we’ve built over 2,000 decks for families here in Knoxville Metro.
You’ll experience a dialed-in process that guarantees a beautiful, safe, and durable deck that you and your family will love.
We’re one of the few decking companies here in Knoxville that can build you an affordable deck in just 3 days, with minimal hassle and stress.
Here's What Your Neighbors Say About Us

Heather M. Burke
We love our deck. More than we thought we would. Nate was great at helping get the design right and Emmanuel made sure it was build right and we were happy

Joe Bucci
I found Riverview Decks to be extremely easy to work with. They recently completed a deck and stair project for us. We gave them a mostly baked idea of what we wanted and they came up with a final design we just love that worked for our budget. Easily my favorite contractor I’ve worked with. Couldn’t recommend them enough.

Greg Berney
Nate and the entire team at Riverview Decks do an incredible job. Highly professional, fair pricing, and great service. They show up when they say the will, provide high quality in their work, and are always responsive. I highly recommend them for your deck work.




